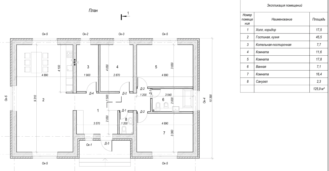
Проект дома 125 м2. Дом размером 15.7 на 10.4 метров, с четырехскатной крышей. Материал стен - Газоблок 625х400х250. Проект очень подробный и по нему был построен дом в МО. В доме, помимо всего прочего, будет располагаться кухня гостинная в 45м2 и три комнаты, это отличный вариант для проживания семей с детьми. Самое главное решится и начать действовать, в остальном все получится и все будет хорошо!
Отзывов от покупателей не поступало