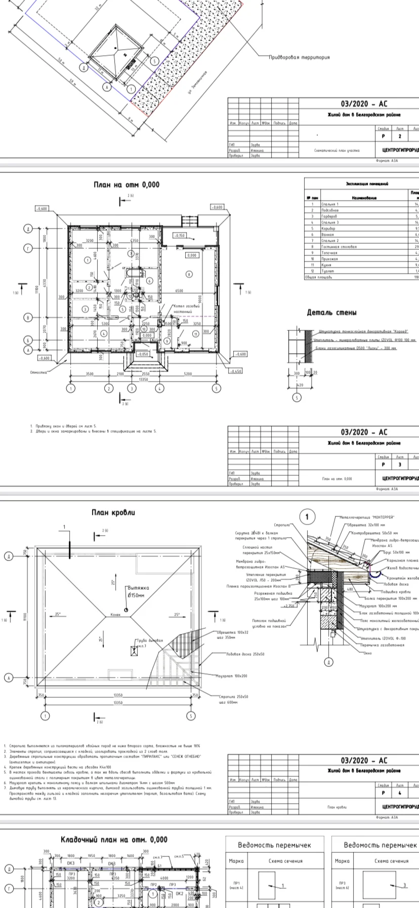
Проект взят за основу с сайта Z500 (Сделан в местной проектной компании). (Номер Z375) с лично моими изменениями, по которым реально строю дом.
- Один этаж
- Гараж убран
- Немного увеличена площадь спален, соответственно общая площадь подросла до 118, 55 кв. м
- Фундамент лента (Себе делал свайный)
- Наружные стены дома из газосиликатных блоков D500 толщиной 300мм
- Все внутренние перегородки газосиликат 150 мм
- С/У раздельный.
- Внешняя отделка стен- "Короед"
В проект входят следующие расчёты: фундамент, стены, крыша, дверные и оконные проёмы.
Процесс строительства можете посмотреть на канале
https://www.youtube.com/channel/UCMIW-DCUYACW4Hyv3k01Bxw
Отзывов от покупателей не поступало