Это проект большого одноэтажного дома с крытой зоной для барбекю (гриль) и большой зоной отдыха.
Проект дома с плоской крышей соответствует всем нормам СП 64.13330.2017
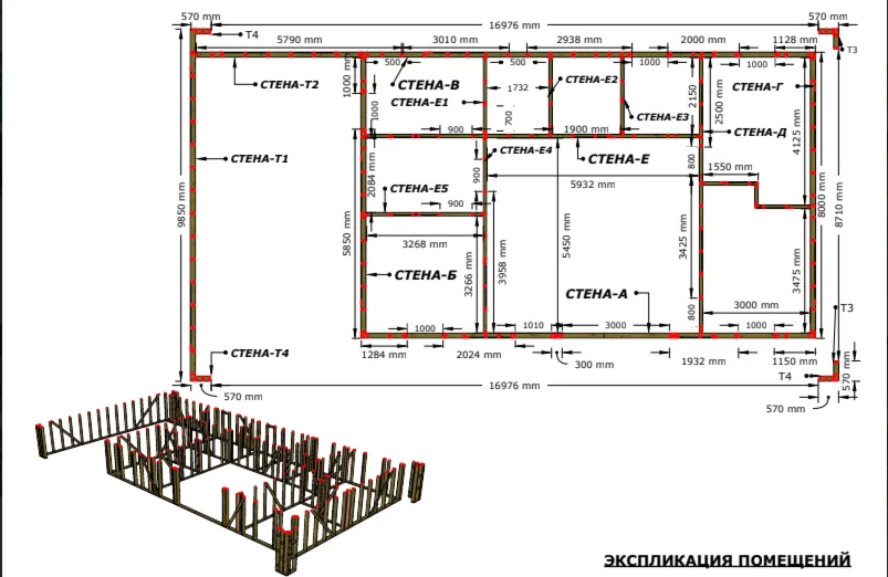
В доме 4 спальни и 4 технических помещений, а также большая кухня-гостиная с витражными окнами.
В состав проекта входит:
1. Чертежи (СП 64.13330.2017).
2. Спецификации.
3. Ведомости отделки и утепления.
4. Экспликация помещений.
Отзывов от покупателей не поступало