Вариант 04.
Университет МГСУ, ПГС - преподаватель Вершинин.
Металлические конструкции, включая сварку - Одноэтажное промышленное здание.
Курсовая работа была сдана данному преподавателю.
Содержание работы:
Компоновка здания
Расчет балки подкрановой
Расчет рамы на нагрузки таблица РСУ
Расчет колонны
Расчет фермы стропильной
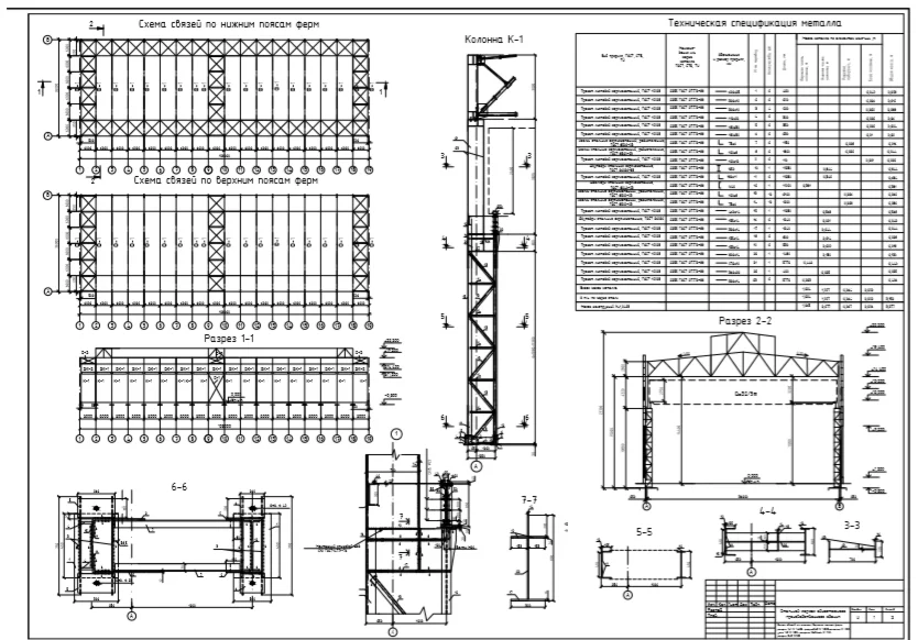
Лист чертежей 1:
Содержит компоновку здания, колонну, разрезы
Лист чертежей 2:
Стропильная ферма
---------------------------------------
Архив содержит:
Чертежи в формате .dwg .pdf; Пояснительная записка в формате .doc.
По всем возникающим вопросам можно обращаться в Телеграм nexuspn.
Отзывов от покупателей не поступало